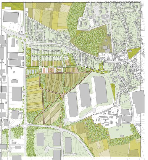
Le projet s'appuie dans sa stratégie urbaine sur trois directions différentes hiérarchisées entre elles. La plus importante correspond aux continuités écologiques territoriales qui traversent ma zone de projet, celui-ci cherchant à les reconnecter par une maille. La seconde direction est donnée par le parcellaire existant agricole et urbain qui favorisent un axe Nord-Sud. La troisième direction est Est-Ouest et locale, elle est donnée par ma volonté de reconnecter les tissus urbains du centre de Survilliers à l'Est et de la Zone Industrielle de Fosses/Saint-Witz à l'Ouest. Ainsi, non seulement l'agro-parc, mais aussi le projet architectural s'inscrit dans ces trames. C'est pourquoi à l'échelle du plan masse architectural, il s'agit de l'axe Nord-Sud qui pré-domine. Dans ma volonté d'inscrire mon projet dans son paysage existant, je suis par ailleurs convaincu de la nécessité de respecter cette trame. Le projet fonctionne selon trois pôles programmatiques : Le digesteur, la halle agricole et le centre de formation. Une cour de service commune au digesteur et à la halle agricole me permet de gérer les flux entrants et sortants des véhicules agricoles et de transport. Fondé sur des principes permacoles, ce projet cherche à limiter l'usage des véhicules mécaniques lourds et donc je considère un tracteur et son semi-remorque comme un gabarit maximal me permettant d'établir dans le dessin du projet les dimensions de conception, retraits et rayons de giration adéquats. La halle agricole bénéficie d'un grand espace public extérieur en dialogue avec la cafétéria et l'espace d'exposition du centre de formation. Cet espace public accueille des événements liés à ces fonctions (marché hebdomadaire, foires, etc). J'ai décidé de développe le centre de formation pour le projet architectural puisqu'il me permet autant de travailler sur un bâtiment recevant du public, accueillant des fonctions de travail et d'éducation et de loisirs, que des aménagements extérieurs publics qui approfondissent mon travail entamé sur l'espace public de l'axe et de l'agro-parc. Le projet se déploie tout autour d'un espace public "en cour". Le bâtiment accueillant la cafétéria et l'espace d'exposition se veut poreux par ses façades vitrées légères et permet une certaine continuité de l'espace public de la halle agricole jusque dans cet espace public plus intime. Le centre de formation lui-même fonctionne comme un U, avec un bâtiment principal comprenant salles de formation et espace de détente à rez-de-chaussée, et espaces de co-working et un laboratoire à l'étage. Le bâtiment accueillant l'administration et l'auditorium constitue la façade urbaine du projet, se dévoilant sur l'axe urbain. Les ateliers pédagogiques enfin, se projettent sur le parc. Une bande servant intérieure permet de desservir l'ensemble des fonctions depuis les tissus résidentiels jusque dans le parc. L'ensemble des fonctions techniques (circulation verticales, salles humides, espaces de stockage) sont concentrés dans blocs structurels porteurs en béton, permettant le contreventement du système structurel général en portiques acier. L'espace servi se distingue entre espace "fluide" public et espaces "rigides" intimes, marqués par des boites en ossature bois auto-porteuse. Ainsi, par un principe de double-peau, l'isolation du projet est assurée. Les façades légères vitrées filtrent la lumière du sud par une résille mince en bois. Les boites, elles, captent la lumière zénithalement et par de larges baies de polycarbonate translucide. Enfin, j'ai souhaité poursuivre dans ce développement ma réflexion sur la question des limites entamée dans le projet urbain, c'est pourquoi, avec un traitement par "couches" et "strates", je cherche à questionner les rapports entre espaces publics et privés, espaces intimes, entre espaces extérieurs et intérieurs, urbains, naturels et agricoles. Le projet du Parrish Art Museum des architectes Herzog et de Meuron a constitué une référence pour le principe structurel dans sa capacité à déployer différentes spatialités à partir d'un principe de construction simple, permettant des variations. Il ne s'agit pas bien sur d'une référence programmatique et j'ai bien veillé à considérer cette référence par rapport à l'enjeu programmatique dans lequel elle s'inscrivait.






