Directeur(s) d'étude(s) : Etienne LENACK
Enseignants : Benjamin COLBOC
Le projet de fin d’études porte sur la transformation du parking Louis Aragon à Villejuif, édifié en 1985 par Jacques Kalisz. Conçu comme parking-relais de 500 places, il est aujourd’hui sous-utilisé et fortement contraint par sa structure massive en béton armé composée de poteaux, poutres et dalles. Le bâtiment occupe une position stratégique au-dessus du pôle de transport Villejuif Louis Aragon réunissant métro, tramway et bus, bientôt renforcé par l’arrivée de la ligne 15 du Grand Paris Express.
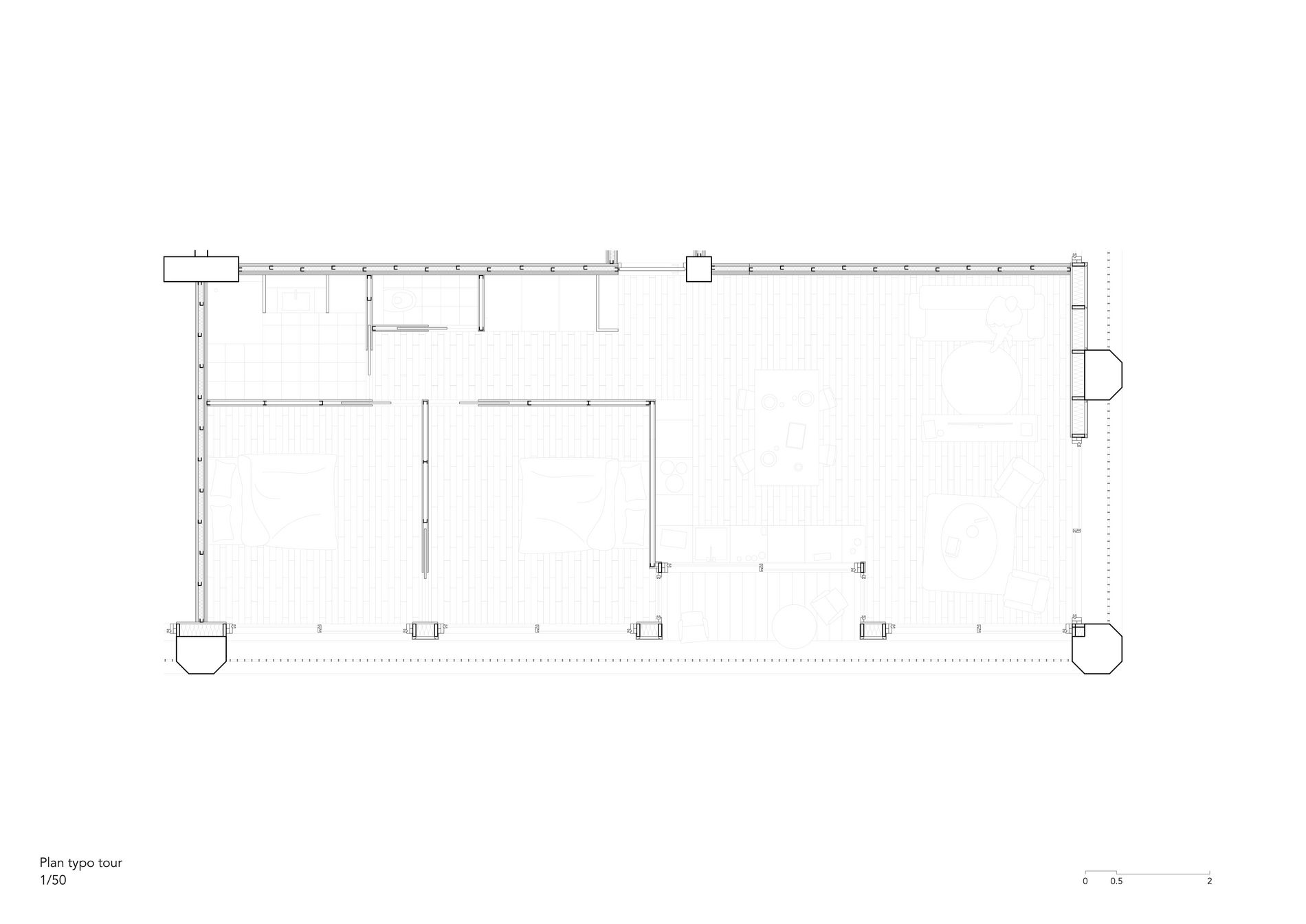
L’intervention vise à réduire l’offre de stationnement à deux niveaux, réhabiliter les niveaux supérieurs en bureaux et surélever le bâtiment pour y intégrer de nouveaux logements. Les logements se divisent en 2 parties : une tour résidentielle de 52 mètres inscrite dans la trame existante, où les logements sont peu profonds tirent parti des poutres massives pour organiser les espaces et les ouvertures, et une série de duplex avec de grandes hauteurs libres et de larges baies vitrées dont la structure secondaire permet d’offrir différentes possibilité d’aménagement. Cette approche concilie les contraintes constructives du parking silo et les nouveaux usages attendus du quartier.









