Directeur(s) d'étude(s) : Sabine MOSCATI
Enseignants : Pierre TISSERAND
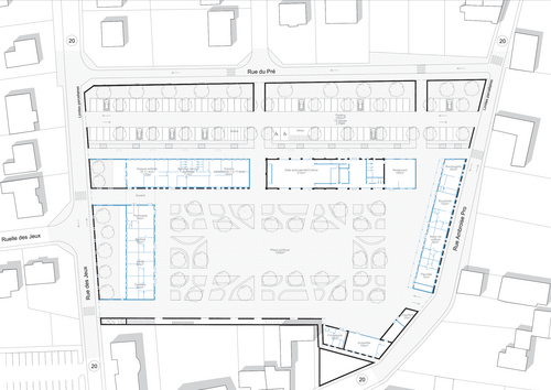
Vaux-le-Pénil est une commune située en Seine-et-Marne, à une quarantaine de kilomètres de Paris. Le site de la ferme des Jeux, au centre de la ville, est entouré majoritairement par des maisons individuelles.
La ferme des Jeux a une véritable valeur patrimoniale et sentimentale puisque ce site est composé de différents bâtiments en pierre et de différentes époques. Le projet est axé sur la réhabilitation de certains bâtiments conservés et la création de bâtiments neufs. Un programme mixte et intergénérationnel prend place sur ce site : un pôle culture et loisirs, un pôle jeunesse, un pôle santé et un pôle de services de proximité. Ce programme a pour objectif de créer des liens entre les habitants et de dynamiser et rendre attractif le site de la ferme des Jeux.









