Directeur(s) d'étude(s) : Alessandro MOSCA
Enseignants : Laurence VEILLET
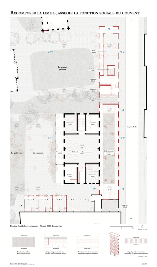
Le site du couvent des sœurs Franciscaines de Marie, qu'elles occupaient depuis plus d'un siècle dans le sud du 14e arrondissement de Paris, a été vendu en 2018.
Ce projet de fin d'études propose de reconquérir ce cœur d'îlot de manière pérenne, en recomposant l'impasse Reille et en offrant un nouveau jardin public connecté au quartier. La désimperméabilisation renforce l'îlot de fraicheur du couvent, donné aux habitants.
La programmation, culturelle et sociale, s'inscrit dans la continuité de l'œuvre des sœurs qui ont rythmé la vie du quartier pendant leur occupation du site.






