- PFE
DOUSSAN Ambre
Une ouverture sur la mer - Le nouveau centre de recherche pour la dépollution de la méditerranée dans la ville de Fréjus -
2021
Directeur(s) d'étude(s) : Jean-Luc CHASSAIS, Sébastien MÉMET
Enseignants : Jean-Luc CHASSAIS, Sébastien MÉMET
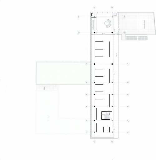
Fréjus est une ville de la Côte d'Azur. De ce fait, elle fait face à des enjeux très particuliers à plusieurs niveaux. Notamment la gestion des afflux touristiques ou encore la connexion avec son littoral. Ce projet de fin d'études traite un projet urbain et un projet architectural qui s'implantent sur le site de la Base Nature, qui est le site de l'ancienne base aéronavale de la Marine. Se situant sur le littoral fréjusien, c'est un site très privilégié de part sa localisation géographique entre ville et nature et le long de deux axes majeurs urbain, mais également très mal exploité par la ville actuellement. Ce projet vise à renouveler une partie de la ville qui a un potentiel de développement urbain important, tout en renforçant un des axes majeurs de Fréjus (le boulevard de la mer). S'implantant à l'extrémité du boulevard de la mer, le projet architectural est une ouverture sur la mer depuis ce boulevard en créant un cadrage sur celle-ci le jour, et faisant office de phare la nuit. Le bâtiment accueille un centre de recherche et de sensibilisation sur la pollution de la mer Méditerranée et la biodiversité locale.









