Directeur(s) d'étude(s) : Anne-Sophie BRYCHCY, Stéphane THOMASSON
Enseignants : Alexandar SARDAREV, Sébastien MÉMET
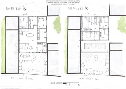
Le projet proposé aux étudiants consiste en la conception d'un logement familial individuel d'une surface habitable d'environ 175m² sur lequel ils travaillent pour un site péri urbain peu contraint pour le transposer dans une site urbain dense en contraint situé au 5, Passage Olivier de Serres Paris 15ème.
Il s'agit d'utiliser les connaissances du fonctionnement du logement acquises précédemment mais dans un autre contexte, en réutilisant les bases constructives de la structure bois et en les extrapolant dans un contexte urbain dense qui impose la superposition. C'est pourquoi, le programme peut se décliner en petit collectif intermédiaire de 3 ou 4 logements de même typologie.








