
Des espaces publics intérieurs et extérieurs

S'inspirer des grands axes du site

Plan de rez-de-chaussée

Un programme tourné vers l'échange et la mixité

Des vues panoramiques et croisées entres espaces

Une tour qui voit et donne à voir

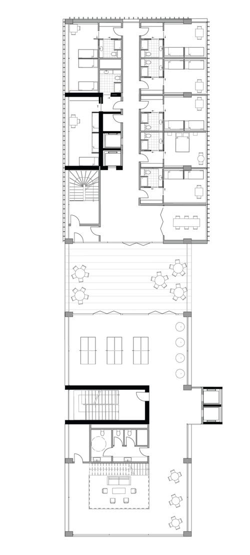
Plan étage type - auberge de jeunesse et espaces communs

Coupe longitudinale
Directeur(s) d'étude(s) : Hervé DUBOIS
LE SUJET : ESPACES PUBLICS ET FRANCHISSEMENT EN MILIEU URBAIN
Prédominance de l'automobile, situation à la croisée du Périphérique et de l'axe historique parisien, proximité du Bois de Boulogne, caractère imposant du Palais des Congrès, première "image" de Paris pour les touristes qui arrivent par la gare routière... La porte Maillot concentre de nombreuses spécificités, contraignantes ou stimulantes, qui nous ont motivées.
LE PROJET : UN MAILLAGE À DIFFÉRENTES ÉCHELLES
La thématique initiale de ce projet était le franchissement du Périphérique, mais suite à l'analyse urbaine nous avons finalement proposé des "franchissements" dans tous les sens : les traversées de part-et-d'autre de l'axe historique et du Boulevard des maréchaux ont également été traitées.
Au-delà des connexions facilitées par les espaces extérieurs créés, des bâtiments-mêmes sont traversés (passage à travers le Palais des Congrès, promenade verticale dans la tour) et dialoguent ainsi avec l'espace public qu'ils prolongent.
Par ailleurs, l'espace public vertical créé permet de s'affranchir des limites visuelles inhérentes au contexte environnant, en offrant un franchissement visuel bien plus important que celui dégagé depuis le sol. 
Ainsi, le projet répond à la problématique du franchissement et au thème d'espace public fédérateur par la création de liens physiques qui facilitent les liens humains : nous maillons les lieux et les gens.









