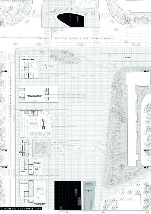
La concertation citoyenne sur le réaménagement de sept grandes places parisiennes : « Réinventons nos places ! » fut le point de départ de la réflexion urbaine sur la Porte de Vincennes. Si le site de Porte de Vincennes, constitue aujourd’hui une fracture dans le tissu urbain, on peut imaginer, au regard des agrandissements successifs de la Ville de Paris, que les anciennes portes de la ville se transforment en places. L’observation du site permet d’identifier ce lieu comme une articulation possible entre Paris et sa banlieue. L’idée première était de créer un centre de production matériel et immatériel ouvert en permanence au public. L’espace public culturel à une visée démocratique, et rend accessible la connaissance, l’expression culturelle, qu’elle soit artistique ou politique. La Porte de Vincennes pourrait devenir le « bistrot du coin » à l’échelle de la ville en même temps qu’une plateforme européenne de production. Les espaces sociaux doivent être valorisés ils ne doivent plus être des espaces réservés à la création artistique mais au contraire un lieu favorisant la rencontre et l’accessibilité de la culture.





