- DE 4 ÉCOLOGIE RADICALE
- PFE
Mia Maria ABI EZZ
Trois villes, trois cadres légaux de prostitution : cohabitation et encadrement urbain du travail du sexe à Paris, Zurich et Berlin
2025
Directeur(s) d'étude(s) : Mathieu MERCURIALI
Enseignants : Catherine RANNOU, Kevin MAIQUES, Marion HOWA
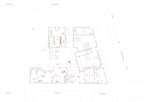
Mon projet de fin d’études porte sur trois contextes contrastés : la pénalisation française qui marginalise, la tolérance allemande sans cadre spatial, et le modèle suisse qui organise des zones dédiées. Ces écarts révèlent comment la loi influence directement visibilité, sécurité et intégration urbaine du travail du sexe.
À partir de cette analyse, j’ai choisi d’approfondir le projet architectural à Zurich, où l’espace public est déjà encadré. Dans la Langstrasse, je propose un habitat partagé inspiré des coopératives locales, structuré autour d’un escalier habité distribuant cantine, laverie, ateliers et logements collectifs. Tandis que Paris et Berlin appellent surtout des aménagements urbains minimaux, Zurich permet d’imaginer un véritable écosystème architectural articulant intimité et partage, protection et visibilité, interrogeant le rôle de l’architecture face à une activité marginalisée mais profondément urbaine.







