- PFE
PROTEAU Benjamin
STOCKMANN Julie
Entre jardin de production et jardin artistique : Se réunir, sensibiliser et travailler autour de l'agriculture urbaine et de l'environnement
2021
Enseignants : Hervé DUBOIS
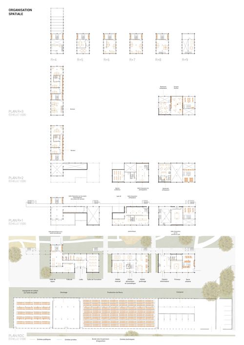
Située sur une friche industrielle, la parcelle au Nord de L'île-Saint-Denis, encadrée d'un paysage exceptionnel, demande à être repensée pour se rattacher à son contexte et devenir un espace attractif autour d'activités liées à l'agriculture urbaine, à la biodiversité et à l'environnement. Entre un jardin de production et un jardin artistique, les visiteurs pourront se confronter à des questions écologiques autour de trois pôles : "Travailler", "Sensibiliser" et "Se réunir".









