Directeur(s) d'étude(s) : Pierre TISSERAND
Enseignants : Philippe MAILLOLS
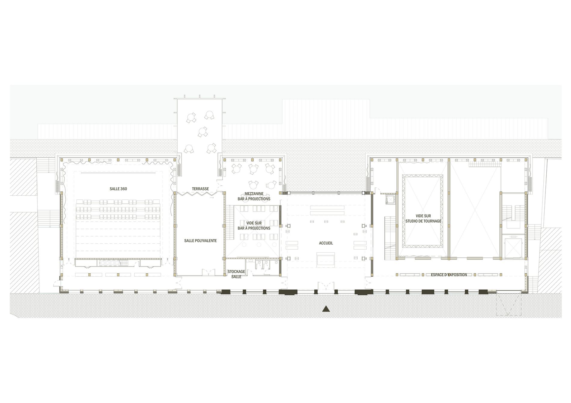
Le projet répond à l’appel à projets « La Fabrique de l’image » et vise à créer un lieu dédié aux métiers du cinéma, mêlant formation, création et diffusion. Installé dans l’ancienne usine Gruson à Amiens, le projet valorise un patrimoine industriel fort tout en l’ouvrant sur la ville grâce à une architecture contemporaine.
Le dialogue entre l’ancien et le neuf se traduit par la conservation d’une halle emblématique, autour de laquelle s’articulent des volumes verriers et modulables, évoquant l’envers du décor cinématographique. La façade, pensée comme un écran, devient active et évolutive selon les usages. Le projet assume pleinement sa dimension culturelle et pédagogique, en intégrant les contraintes acoustiques et en valorisant la transparence, la structure visible et la scénographie des espaces.








