- DE 7 Praxis
- PFE
Monnin Axelle
PFE : Le petit Guyancourt, un socle de partage et des hauteurs habitées
2025
Directeur(s) d'étude(s) : Julien BROUSSART
Enseignants : Philippe MAILLOLS
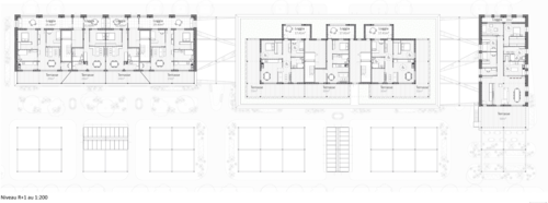
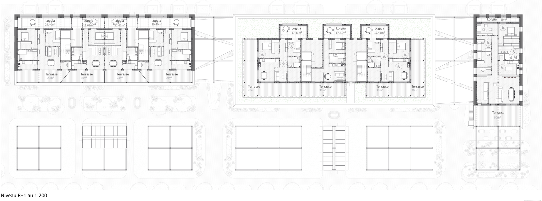
Le projet se situe à Guyancourt (Yvelines), dont l’urbanisation sera transformée par l’arrivée du métro 18. La création d’un nouveau quartier, intégrant logements collectifs et requalification de l’avenue de l’Europe, appelle à repenser la relation entre les lotissements existants et cette future dynamique urbaine. Sur un merlon de 400m sur 45m, l’enjeu est de relier les pavillons actuels au nouveau projet et de redonner une identité à la ville, marquée par un développement en « ville nouvelle » depuis 1960, où les habitants vivent isolés, sans commerces de proximité et dépendants de la voiture.
Le projet répond à plusieurs questions : comment désenclaver les pavillons, inclure les habitants, répondre aux besoins de logements liés à la gare, développer une entrée de ville et retrouver une vie de quartier ? La réponse prend la forme de bâtiments multiprogrammes : rez-de-chaussée animés par commerces et activités, étages dédiés aux logements, jardins familiaux pour réintroduire l’agriculture, et espaces pédagogiques liés à l’artisanat et à la création.
L’architecture valorise des matériaux durables (pierre meulière, bois, liège, laine de bois) et propose des implantations en retrait pour limiter le vis-à-vis tout en créant un front bâti sur l’avenue. Des percées visuelles ouvrent sur des espaces végétalisés. Chaque logement bénéficie d’une terrasse donnant sur le cœur du site et d’une loggia côté nord, assurant confort et mise à distance avec l’avenue.









