- DE 5 INFRASTRUCTURES TERRESTRES
- PFE
PORTIER BAL-CRAQUIN AMBRE
La Gare Parc - La halte de Croix-Sainte comme espace public
2025
Directeur(s) d'étude(s) : Maya NEMETA
Enseignants : Antoine VIGER-KOHLER, Marie-Luce LIACOPOULOS BASSIL
L’étude de la ligne de la Côte Bleue, structurant le paysage et les imaginaires locaux, a mis en évidence une rupture entre sa partie sud patrimonialisée et sa section nord délaissée. Le projet se situe dans cette portion oubliée, visant à lui redonner sa place et révéler ses qualités.
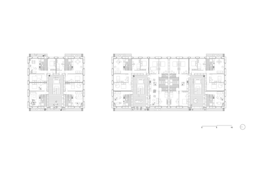
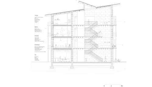
À Martigues, la halte ferroviaire de Croix-Sainte incarne une rupture entre ville résidentielle et paysage industriel. Marginalisée, sans bâtiment ni lien urbain, elle reste ignorée malgré son potentiel stratégique. Mon projet propose de la transformer en une gare-parc, un espace public habité. Contrairement aux autres gares de la ligne composées d’un bâtiment voyageur, cette gare est conçue comme un paysage intégré au sol et aux usages.
À grande échelle, une promenade relie la gare aux berges du chenal. À l’échelle urbaine, des restanques prolongent les quais en gradins publics, un pavillon crée le lien entre la rue et la gare et des logements ancrent le lieu dans la vie du quartier. Ce nouveau modèle de gare dans ce territoire crée un support d’usages quotidiens, pas seulement un point d’arrêt. Croix-Sainte devient un pôle de vie, capable de requalifier une portion oubliée de la Côte Bleue.








