Directeur(s) d'étude(s) : Maya NEMETA
Enseignants : Antoine VIGER-KOHLER, Marie-Luce LIACOPOULOS BASSIL
En partant d'une recherche théorique menée dans le cadre du mémoire sur les potentiels de l'infrastructure routière fosséenne, le projet propose d'envisager la route comme ligne de vie de la réflexion. Il s’articule autour d’une épaisseur additive en extension de la route, visant à renforcer la liaison entre la ville et le littoral. Le site prend place à l'entrée de Fos-sur-Mer depuis une route nationale, dans un espace de passage assez hostile à l'échelle humaine. L’objectif de ce projet est ainsi d’offrir une forme d'habitabilité de la lisière routière et ce, en prenant place sur le tronçon de voie permettant son franchissement vers le littoral.
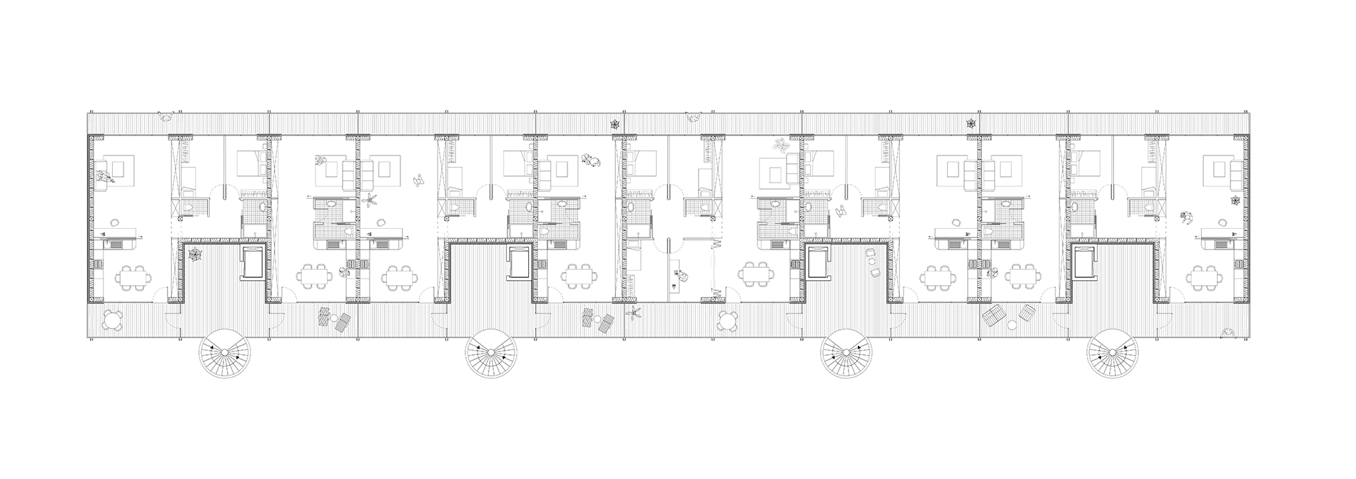
La nouvelle épaisseur imaginée se matérialise par une passerelle greffée à l'infrastructure et envisagée comme un espace public continu. Elle comprend deux dilatations bâties sous la forme de socles fonctionnels en béton, placés de part et d’autre dans l’épaisseur des talus de redescente du pont. Côté ville, le socle accueille du parking en sous-sol et délimite, en suivant la descente de la route, un espace public en extension du trottoir existant. Par-dessus, un volume en structure bois permet la fabrique de logements traversants, organisés selon les trames du socle. Côté canal, le deuxième socle accueille un espace de rencontre multimodale, et permet grâce à sa structure d'envisager une réversibilité future.








