- DE 7 Praxis
- PFE
CHAPITEAU Océane
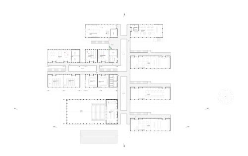
Anba Flanbwayan - Une école d'architecture et de paysage pour la Caraïbe
2025
Directeur(s) d'étude(s) : Charles Albert DE BEAUVAIS
Enseignants : Hervé DUBOIS
Ce projet de fin d’études propose une école d’architecture et de paysage, implantée en Guadeloupe, pensée par et pour la Caraïbe. Elle répond à un besoin concret : former localement les architectes et paysagistes de demain, en intégrant les réalités climatiques, culturelles et matérielles du territoire. Plus qu’un lieu d’enseignement, c’est un espace de partage et de coopération entre les îles caribéennes. Le projet valorise une pédagogie ancrée dans le contexte tropical, mêlant cours de dessin, apprentissage des langues régionales et expérimentation des matériaux avec des professionnels. L’école adopte une architecture bioclimatique, respectueuse des ressources locales et des savoir-faire. Articulée autour d’une rue intérieure, elle s’organise sur deux niveaux et se fond dans le paysage. Entourée de nature, patios et venelles, c’est une école où l’on vit dedans comme dehors.









