- Enseignement de projet
GUIGNARD Philippe
Transformation de la friche industrielle de la Belle Angèle en ESAT
2024
Enseignants : Vesselina LETCHOVA
La ville de Pont-Aven est partagée entre deux histoires. La première est artistique, avec les peintres de l’école de Pont-Aven à la fin du XIXe siècle, ce qui attire aujourd’hui de nombreux touristes. La seconde est l’histoire industrielle de la ville, avec les usines qui ont permis l’essor économique du bourg. Pont-Aven est situé entre deux coteaux, traversé par la rivière de l’Aven. Une forêt protégée entoure les anciennes usines et abrite une grande diversité de vivants.
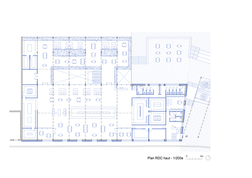
La friche industrielle de la Belle Angèle est une ancienne conserverie de poisson construite en 1930 le long de la rivière. Elle a été progressivement agrandie jusqu’à son abandon en 1998. L’ensemble, de près de 3,2 hectares, est composé de 12 bâtiments, principalement des grands hangars, mais aussi de 3 bâtiments en R+1.
Je propose de transformer cette friche industrielle en ESAT (Etablissement et Service d’accompagnement par le travail) pour des travailleurs handicapés. Cet ESAT comportera des espaces de productions, un restaurant, des ateliers d’artisanat, une cuisine pour les collectivités et des boutiques.









