Enseignants : Léonore LOSSERAND
Le PFE recherche Faire éclore la ferme Saint-Lazare, a été développé autour de la notion d’hospitalité, en partenariat avec l’association Études et Chantiers sur le site de la ferme Saint-Lazare à Grigny (Essonne).
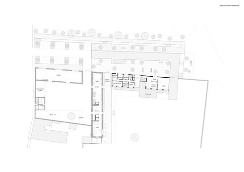
Le projet a eu pour ambition de proposer un scénario de valorisation, d’ouverture et d’amplification de ce site dédié à l’insertion professionnelle et au partage des connaissances et produits agricoles. La collaboration a débuté par le relevé de l’existant, la compréhension des usages et besoins futurs par le biais du dessin et de la rencontre des acteurs locaux. Le projet a vu le jour grâce à des temps d’échange successifs. L’intervention s’est axée sur la transformation du bâtiment de la Ferme Baron pour lui donner la valeur d’un bâtiment public en dévoilant ses arcs par la création d’une double hauteur. La cour et les corps de fermes à l’est sont dédiés au soin des animaux, tandis qu’une extension neuve vient accueillir le support du maraîchage : nettoyage, transformation, construction, gestion… Une coursive dessert ces espaces fonctionnels, faisant le lien entre intérieur et extérieur, un système de noues et le paysage cultivé.









