- PFE
MAA Sami
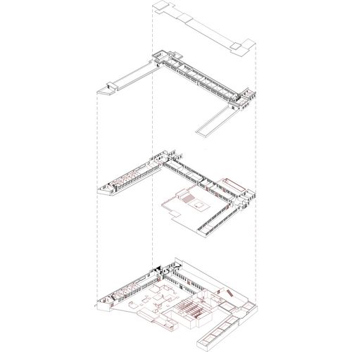
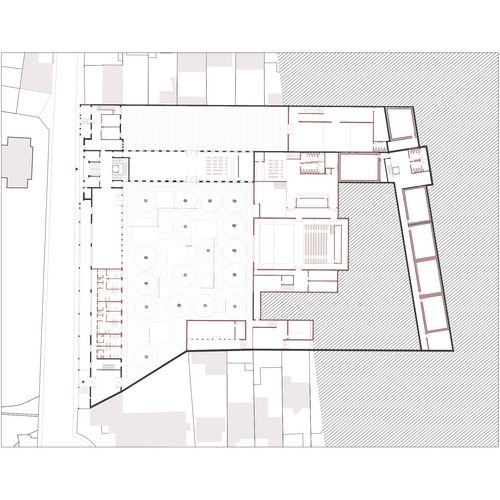
Centre de la danse Arts en Mouvements - Transformation du Groupe Scolaire Pierre Curie à Gentilly
2022
Directeur(s) d'étude(s) : Etienne LÉNA
Enseignants : Lila BONNEAU
Le Groupe Scolaire Pierre Curie est une ancienne école filles/garçons construite en 1932 par l'architecte Florent Nanquette. On retrouve une typologie en U avec une orientation sud. L'espace extérieur majeur du site est composé de deux cours séparées par une différence de niveau d'environ 5 mètres. La topographie de la zone dans laquelle se trouve le site a conduit à la création d'un mur de soutènement afin que chaque cour soit nivelée. Ce mur, situé au centre de l'école, marque symboliquement la différence filles/garçons.
L'idée d'un programme autour de la danse se prête plutôt bien au lieu de par sa situation et permettrait à Gentilly de l'enrichir culturellement et artistiquement. La venue de danseurs locaux ou d'ailleurs serait favorisée par les différents accès déjà présents, mais également avec la future nouvelle connexion à Paris avec la ligne 14. Ce programme a comme intérêt de participer à la création d'un lieu réellement adapté à la pratique de la danse, en tout genre, et de pouvoir accueillir aussi bien des danseurs hip-hop, classique, contemporain, que des visiteurs.









