Retour

  • Enseignement de projet

CARON Agathe

Ambiance et milieux : éduquer

2023

Bruyères-sur-Oise

Directeur(s) d'étude(s) : Stéphane THOMASSON

Enseignants : Anne-Sophie BRYCHCY

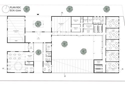
Le projet proposé aux étudiants consiste en la conception d'une école maternelle en banlieue parisienne sur la commune de Bruyères-sur-Oise. Le programme consiste à organiser les espaces en respectant la hiérarchie des locaux et la différenciation entre les locaux publics et scolaires. Les grands principes structurels ayant été abordés précédemment, il s'agit dans ce programme de travailler les ambiances en liaison avec la valeur d'usage et de mettre l'accent tout particulier sur la relation avec l'environnement de l'école (Relation des espaces avec l'extérieur et thématisation des espaces extérieurs : cours de récréation, jardins, parvis...). On peut aussi orienter la démarche de l'étudiant dans une approche environnementale à énergie positive, l'invitant à rechercher des procédés constructifs innovants. Ainsi, l'année se termine sur un programme d'équipement public amenant les étudiants vers les projets plus complexes de la troisième année. L'exercice se déroulera sur 6 semaines. Le projet s'inscrit dans l'une des thématiques retenues pour la 2ème année de licence dans le programme de l'ENSAPV (ambiances et milieux) en s'attachant à un programme d'équipement avec usages mixtes sur un terrain existant, avec la volonté d'initier les étudiants à la pratique du projet sous certains de ses aspects opérationnels (méthode de travail, techniques de construction, insertion dans le réel, etc.), c'est à dire de rendre la réalité du construire moteur de la conception et non simple conséquence. Ce programme devant être conçus avec différentes fonctions amène l'étudiant vers les schémas fonctionnels, ou axonométries programmatiques qui l'aident à synthétiser sa pensée.