- PFE
CHEVALIER Bénédicte
DAUM Lucie
Reconversion du CHU Hôtel-Dieu à Nantes. Prendre soin de l'agrégat urbain dense au quartier perméable.
2022
Directeur(s) d'étude(s) : Donato SEVERO, Xavier DOUSSON
Enseignants : Lila BONNEAU, Vesselina LETCHOVA
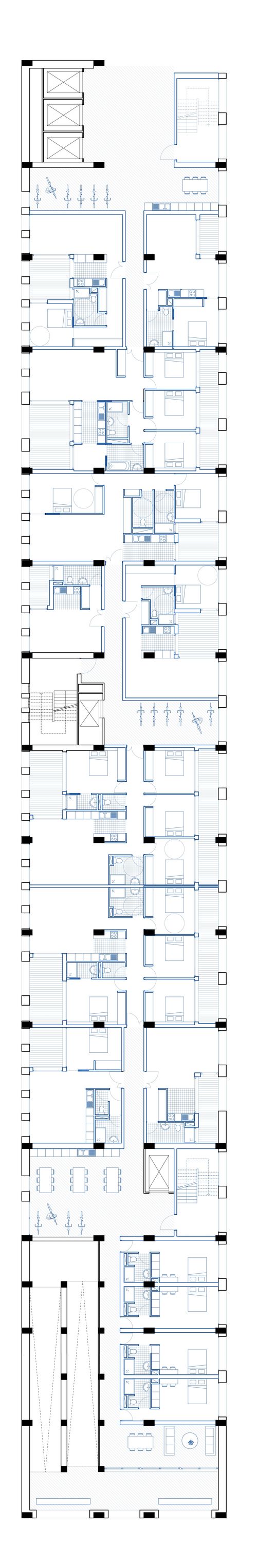
Le CHU Hôtel-Dieu de Nantes doit déménager à l'horizon 2026 et être transféré au sud de l'Île de Nantes dans un tout nouvel établissement. En février 2020, la maire Johanna Roland, a annoncé la création d'un grand parc nourricier en lieu et place de l'actuel hôpital. Cette proposition nous semble radicale au vu d'une ville qui se densifie et au regard de l'impact environnemental que suppose sa déconstruction. Notre travail s'établit en tant que contre-projet avec un enjeu, celui d'affirmer les valeurs urbaines et architecturales à travers la réutilisation de l'héritage bâti.
Suite au déménagement du CHU, nous proposons d'ouvrir les 9 hectares bâtis à la ville. L'intervention urbaine se concentre principalement sur l'irrigation du site, sa piétonnisation et la redéfinition des relations entre les interfaces du site avec ses alentours. Nous souhaitons rendre l'îlot plus perméable, mettre en place de nouveaux parcours et traversées. Il est question de redéfinir et redessiner les espaces publics, de les spécifier en fonction de leur localisation et de favoriser leur accessibilité.









