- PFE
LEPORTIER Chloé
Centre d'accompagnement physique et psychologique pour les patients atteints d'un cancer
2021
Directeur(s) d'étude(s) : Philippe MAILLOLS
Enseignants : Charles VITEZ
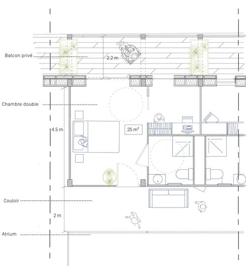
Un patient atteint d'un cancer aujourd'hui se retrouve à faire des allers-retours entre son domicile et l'hôpital quasiment tous les jours pour des rendez-vous de suivi, des opérations, des chimiothérapies... Ces allers-retours sont épuisants et ont un coût physique et économique. Ils épuisent le patient et son entourage, l'isole. Ne pouvons-nous pas réfléchir à une structure qui ferait l'intermédiaire entre le domicile et l'hôpital ? Une structure d'accueil du patient et de sa famille pendant la durée des traitements, qui offrirait un meilleur suivi post-opératoire et qui participerait à compléter l'offre hospitalière existante en promulguant des soins complémentaires aux soins médicaux. Ce centre serait porté par l'institut Gustave Roussy, 1er centre de traitement contre le cancer d'Europe. Il s'inscrit dans une dynamique globale "d'éclatement" des structures de soins sur le territoire pour un meilleur accès aux soins des personnes domiciliés loin d'un hôpital.









