Directeur(s) d'étude(s) : Boris WELIACHEW
La parcelle choisie se situe en extrémité de la ZAC, proche de la gare et de la Seine, lui offrant ainsi une position idéale et une forte identité. Le projet de fin d'étude s'inscrit dans la continuité d'aménagement urbain du quartier du Port, porté par la volonté de mixité. La proximité avec la Seine rend le territoire vulnérable au risque inondation. J'ai décidé de considérer ce risque non pas comme un inconvénient, mais plutôt comme un avantage, en réintroduisant aux habitants le fleuve et son paysage changeant.
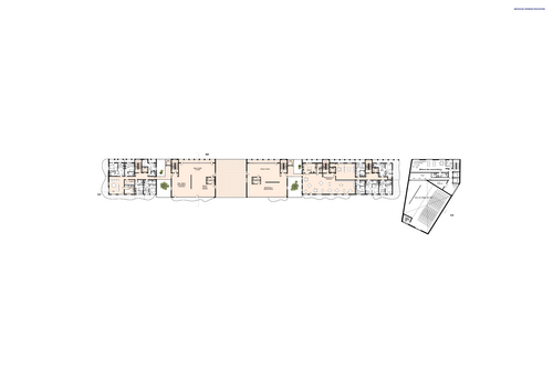
Ce projet architectural et urbain a été construit autour de la présence de l'eau. On s'en inspire dans la forme architecturale et on rompt avec les lignes droites rectiligne de la ZAC. La Seine et les quais ont été à travers ce projet réintégrés au quotidien et à la vie des habitants. On découvre le parc urbain, le fleuve et ses berges depuis l'avenue Louis Luc, comme on découvre l'urbanisme de la ville et l'équipement depuis les quais.
Le parc urbain, offrant un parcours depuis les quais bas vers la rue haute Avenue Louis Luc, est pensé comme un point de rencontre et de détente, proposant un paysage changeant en fonction des crues annuelles. Ce parc pénètre à l'intérieur des bâtiments de logements à travers les serres et terrasses.
La mixité au coeur du projet, est exprimée par des lieux. Trois populations distinctes, habitants dans les bâtiments de logements sont connectées à travers le 4ème étage commun et le parc urbain. Les habitants de la ville, eux, se retrouvent à travers l'équipement, les quais et le parc urbain. Ainsi le projet a pour objectif de créer une vie de quartier animée où les habitants de la ville puissent se retrouver.









