
Axonométrie paysagère

Perspective paysagère

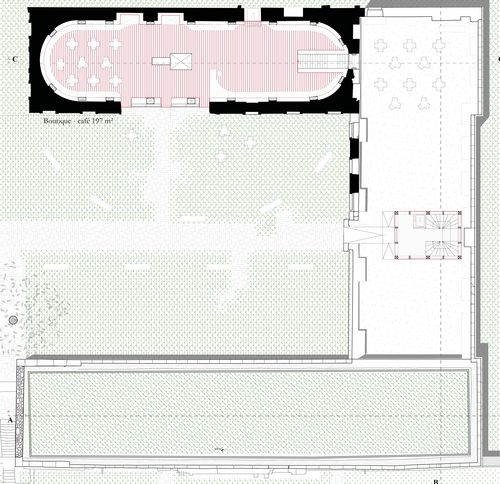
Plan extension - résidence d'artisan et atelier

Axométrie structurelle des studio-ateliers individuel des artisans

Perspective de la rampe dans l'extension reliant tous les cabanons des artisans

Plan de l'église

Coupe de l'église avec greffe d'une coupole en bois ajouré

Perspective de l'église avec la coupole
Directeur(s) d'étude(s) : Julien BROUSSART
L'abbaye Saint-Vivant fait partie de ces patrimoines remarquables secrets de Bourgogne. Abandonnée depuis près de deux siècle, j'ai choisi de travaillé dessus pour mon projet de fin d'études. Elle est nichée en haut d'un éperon rocheux à Curtil-Vergy, c'est aujourd'hui un lieu de balade, elle n'est pas ouverte au public.
J'ai choisi de traiter tout le site de l'abbaye qui est constitué d'une terrasse d'herbe, de forêt, de vigne et de l'abbaye. Un traitement paysager vient guider les promeneurs, grâce un chemin de pierre calepinée de pierre de Bourgogne, et de garde-corps inspiré des murets qui terrasse les vignes. Ils viennent orienter les visiteurs vers les deux attractions du site que sont l'abbaye qui est un pôle de démonstration et de d'expérimentation de l'artisanat et une résidence pour artisan niché dans la forêt. Les deux interventions ont été effectuées en bois brûlés afin de contraster et de mettre en valeur les cicatrices de la ruine mais aussi d'utiliser une technique qui vient fixer le bois et permettre qu'il ne s'altère pas avec le temps.









