
Depuis l’intérieur du bâtiment des archives, on peut apercevoir les vestiges en contre-bas

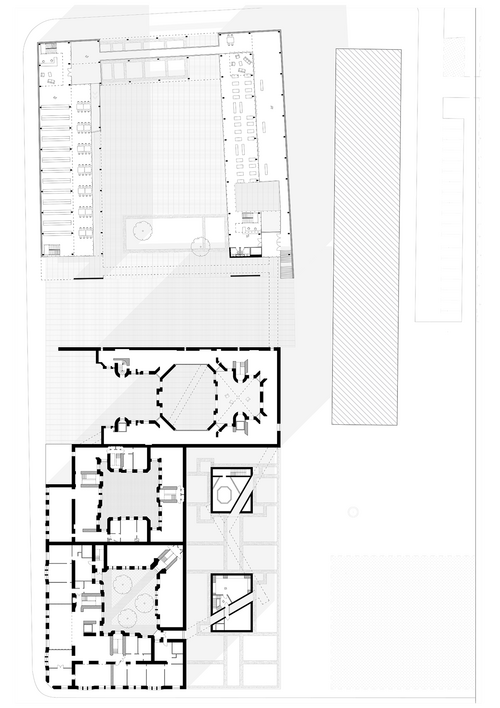
Le projet comprend la création d’un équipement mémoriel au Nord, la création d’un espace commémoratif à l’est, et la préservation d’un ensemble d’anciens immeubles d’habitation à l’ouest dont l’immeuble historique du Kamieniko

Tous les bâtiments du projet sont reliés en hauteur par un espace publique, d’où est orchestrée la mise en scène des traces

L’espace publique traverse les édifices comme le bâtiment d’archives posé au-dessus de vestiges de la ville historique détruite

Le Kamieniko conservé à l’état de ruine devient la porte d’entrée et le trait d’union entre les différents bâtiments du complexe

L’absence de l’immeuble mitoyen détruit en 1944 est révélée et commémorée par une insertion en négatif dans l’ex emprise
- PFE
RICHEBE Valentine
De la trace au récit, (re)composer les mémoires des vestiges de guerre dans Varsovie
2020
Directeur(s) d'étude(s) : Philippe ROUSSEL
Enseignants : Antonella DI TRANI
Presque entièrement détruite à l'issue de la Seconde Guerre Mondiale, Varsovie plongée dans la modernité du XXIème siècle, achève d'effacer les dernières traces de son passé de violence. Que faire des derniers vestiges de guerre du centre-ville ?
L'intervention sur les vestiges de la rue Walicow propose une alternative à la posture de muséification qui fige les éléments dans le temps. La trace matérielle, au lieu de se constituer comme témoin objectif du passé, change de statut et s'appréhende dans une confrontation entre présence et disparition au moyen de dispositifs spatiaux comme le négatif ou la figure de la ruine. Le vide devient alors le support privilégié de la mise en mémoire.
Afin de générer une mémoire vivante donc appropriable, le projet vient à la fois révéler les traces du passé identifiées comme signifiantes (fondations d'édifices détruits, fragments du mur du ghetto, etc.) et enrichir le lieu de nouveaux programmes. Ceux-ci se connectent symboliquement et formellement à l'existant. L'espace publique suspendu qui traverse tous les éléments du projet permet d'organiser une mise en récit du passé. Pensé comme dispositif scénographique, il crée la cohérence entre ces traces éparses.







