Europacity est un projet de très grande échelle porté par Aliages et Territoires. Ce ‘‘quartier de loisirs ‘‘ est porté par des investisseurs Chinois qui espèrent un haut niveau de rentabilité. C’est un projet purement d’intérêt financier qui s’implante sur une enclave agricole de très bonne qualité.
Le contre-projet propose de restructurer le site des anciennes usines de PSA qui se trouvent juste au sud du projet Europacity. Le site de PSA est grand comme le premier arrondissement de Paris et est actuellement très enclavé à l’échelle locale principalement dû à la proximité des autoroutes. On peut pourtant imaginer un potentiel de connexion important en déplacant la station de métro du triangle de Gonesse sur le site.
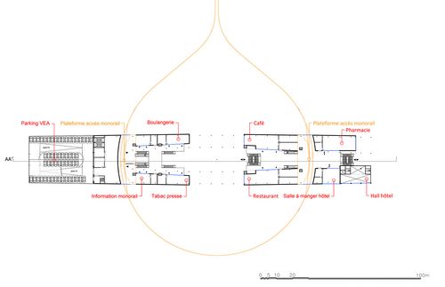
La station multimodale a une position centrale et dessert l’ensemble du site. Elle permet l’interconnexion de multiples modes de transports avec une pluralité de services essentiels pour la vie quotidienne. Elle constitue une interface nouvelle entre la Cité et une architecture habitée, et permet également de connecter le site avec son environnement.









