- PFE
Hugo BALLAIRE
Immatériel et Verticalité – Une tour de post-production cinématographique « Place » de Vincennes
2017
Directeur(s) d'étude(s) : Hervé DUBOIS
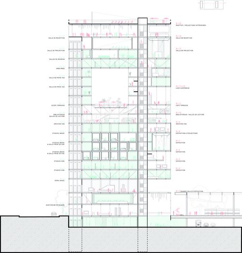
Le projet de tour présenté ici s'inscrit dans un projet urbain plus global de requalification de la Porte de Vincennes. Ce projet urbain dont les principaux objectifs sont bien évidemment la création de lien entre Paris et sa banlieue s'est articulé autours des thématiques de production et diffusion matérielle et immatérielle. Ces thèmes étant directement issus de Vincennes et son histoire propre. La forme du projet urbain peut se résumer en l'opposition franche d'une verticale et d'une horizontale. L'horizontale composée de deux « couches », une couverture du périphérique et une grande toiture fédératrice, vient accueillir des programmes autours de la question de production et diffusion matérielle : ateliers participatifs, showroom... La verticale va elle accueillir tout ce qui est plus en rapport avec l'immatériel : studios de post-production cinématographique, répondant par lamême à une nécessité de studios à Paris, et salles de projection. La tour se veux ainsi être un objet hybride à la fois lieu de production, professionnel alors, et lieu de diffusion, donc public, de cela résulte toute son organisation.








