Directeur(s) d'étude(s) : Donato SEVERO
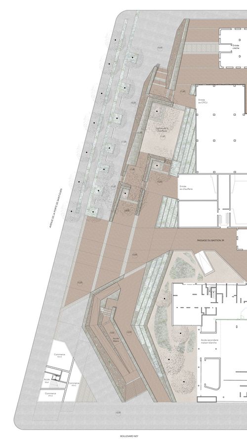
L’hôpital Bichat, situé sur la ceinture de Paris, déménage dans 10 ans. Comment ouvrir ce site de 6,5 ha à la ville, et en faire un lien entre Paris et sa banlieue ? L’unité fonctionnelle de l’hôpital masque l’extrême diversité de son bâti, par sa qualité patrimoniale, son époque, son rapport au vide, au sol. Le projet s’intéresse donc aux espaces qui relient, espaces ouverts donc, un projet de sol. La démarche architecturale s’appuie sur la mémoire collective du lieu, symbolique (ses récits, son imaginaire), spatiale (la sédimentation du site) et matérielle (ses ressources qui constituent un paysage familier), afin de replacer au coeur du projet l’expérience de ceux qui le pratiquent, habitants, usagers, qui par leur présence font exister la permanence de la ville. S’inspirant de la fabrique de la ville pré-industrielle, le projet récupère les matériaux issus des transformations du site pour composer le sol de l’espace public, s’appuyant sur les traces, dénivelés, et perception du patrimoine. Il en résulte une topographie du site qui révèle le palimpseste de ce lieu, à travers une série de séquences urbaines.









