Le projet de la "Ville productive : la mixité, de la rue à l'îlot" s'inscrit dans une réflexion à l'échelle territoriale partagée avec quatre autres étudiants sur l'ensemble de la Boucle de Chanteloup, dans les Yvelines.
Ce travail commun d'implantation d'une forêt en coeur de boucle a soulevé la question des espaces de lisière et de leur qualification. Après avoir déterminé des règles d'aménagement de ces espaces en fonction de leur nature, quatre sites plus spécifiques nous sont apparus. C’est ainsi que je me suis intéressée au centre de la ville de Carrières-sous-Poissy, située au sud de la boucle.
Cette ville périurbaine à proximité de Paris se compose d'un tissu majoritairement résidentiel et subit aujourd’hui de fortes pressions foncières sur l’ensemble de ses espaces non urbanisés. Afin de lutter contre cet étalement urbain, un système de bande active en lisière de la ville a été pensé permettant de pérenniser les espace naturels. Une densification raisonnée de la rue de la Reine Blanche, prochainement connectée à la ville de Poissy par une passerelle piétonne, vient pallier au manque de diversité programmatique au sein de Carrières-sous-Poissy.
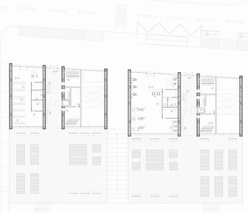
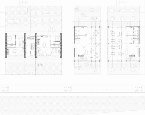
Cette rue accueille actuellement des éléments dynamiques et attractifs tels que des parcelles artisanales ou l’un des deux hypermarchés de la ville, mais subit leur mauvaise intégration au tissu urbain. Le projet architectural consiste donc à proposer l’aménagement d’un îlot type valorisant cette mixité programmatique et plaçant l’artisanat au coeur du dynamisme urbain afin de lutter contre le chômage à Carrières. Cet îlot permet également de retrouver l’identité architecturale de la ville en proposant une interprétation contemporaine de la maison traditionnelle en moellon.









