- PFE
DELCOURT Camille
Une programmation hybride et un édifice trait d’union pour désenclaver le Dépôt Chapelle
2018
Directeur(s) d'étude(s) : Michel JACOTEY
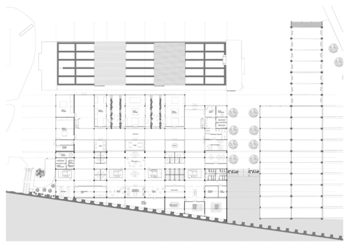
Inscrit dans une armature urbaine complexe, le « Dépôt Chapelle », ancien site de maintenance de la SNCF, est actuellement l’objet d’une réflexion urbaine sujette à controverses. Ce PFE a cherché, en revoyant les ambitions du maître d’ouvrage, à répondre aux enjeux actuels, tout en préservant l’identité et les aménités attachées au lieu. L’aménagement d’un nouveau quartier mixte autour d’un parc urbain cherche à renforcer l’attractivité et l’offre locale en espaces verts de l’arrondissement.
Les enjeux urbains ont été traduits à l’échelle architecturale. L’ambition urbaine de connexion et d’intégration du site à la ville a composé tant le fondement du plan d’aménagement que le développement architectural. Aujourd’hui dépourvue d’urbanité et aménagée 6 mètres au-dessus du niveau du site, la rue Ordener a orienté les choix volumétriques. L’édifice hybride se compose en partie d’une ancienne halle de la SNCF associée à une extension neuve sur rue.
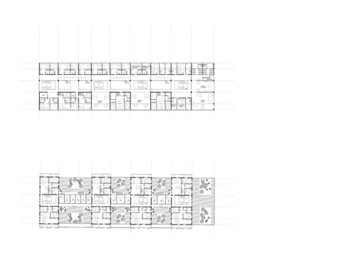
La mixité programmatique détermine l’attachement de l’ensemble à la dynamique métropolitaine. Le projet porte une réflexion sur les modes de travail en associant habitat et activités. « Le Locomotive », a vocation sociale et ouvert sur la ville, accueille des personnes souhaitant créer une activité et propose des espaces (partagés ou non) propices au développement d’activités diverses (tertiaire, artisanat et service public).









