Directeur(s) d'étude(s) : Alessandro MOSCA
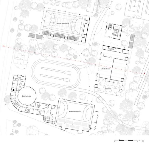
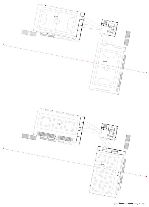
Le complexe sportif Léo Lagrange se situe dans le 12ème arrondissement et a été construit dans les années 1930 par les architectes Schneider et Coli sur les anciennes fortifications de l’enceinte de Thiers. Dans un contexte où Bercy-Charenton va devenir un nouveau quartier, il s’agit de compléter l’offre sportive dans un complexe de 5 ha arrivé à saturation. Le projet consiste à dédier entièrement le site au sport en adéquation avec l’histoire du lieu. De nouveaux bâtiments accueillent des terrains de sport. Ils renforcent l’angle bâti existant et définissent une nouvelle entrée sur le site. Les vestiaires et les sanitaires sont regroupés dans le bloc servant. Dans le bâtiment existant, les espaces délaissés comme la salle rotonde sont requalifiés. Anciens et nouveaux éléments sont connectés par une passerelle qui se dessine comme une colonne vertébrale. Le projet conserve une porosité entre le front bâti du boulevard Poniatowski et le bois de Vincennes pour laisser le plateau sportif ouvert sur la ville. Les terrains de sports extérieurs sont réorganisés et tournés vers le bois. Le végétal est traité par des lanières boisées qui permettent au bois d’entrer dans le site.







