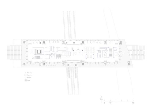
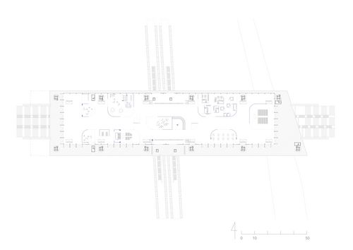
No Stop Tokyo se situe sur une aire de renouvellement urbain de 16 hectares, proche de la station de trains de Shinagawa. Le projet propose une conception nouvelle d’une gare et de ses alentours, en accord avec l’évolution de la société japonaise. C'est une alternative à l'architecture corporate ainsi qu'aux quartiers de gare verticaux de Tokyo. Véritable lieu de vie, la nouvelle gare pont de Shinagawa franchit, se raccorde et tente de s’insérer au paysage environnant. En jouant sur la limite ambigüe entre espaces publics et privés, elle offre de multiples activités sportives, de divertissement et culturelles. Un plan orthogonal structure des coins où se poser, se ressourcer, rêver. Les petites et grands fonctions, plus ou moins intimes donnent sur des allées de largeurs différentes. Puis, les parois progressent vers des courbes et évoquent l’aménagement urbain avec des îlots programmatiques. Enfin, des courbes ondulent dans l’espace, capable de recevoir des flux de grande affluence. Elles rassemblent différemment de manière peut-être plus collective. Ainsi, le grand espace commun intérieur rend possible tous les usages afin de rassembler de jour comme de nuit.








