- DE 9 Transformations
- PFE
BRIFFAULT PAULINE
Un territoire fracturé en attente de lien : du vide à l’usage, se réapproprier l’espace commun
2025
Directeur(s) d'étude(s) : Alessandro MOSCA
Enseignants : Christine DÉSERT
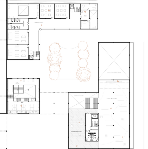
Atlampa est un quartier marqué par son passé industriel et sa structure de blocs, créant un sentiment d’insécurité et d’opacité.
Ce projet vise à inverser cette logique en s’inscrivant dans un plan guide urbain, réalisé pour prolonger et requalifier l’espace public à travers un parcours reliant les points d’intérêt et les nouveaux espaces créés ou réhabilités (espaces verts, espaces publics).
Le projet s'articule à travers trois échelles, urbaine, architecturale et paysagère, et autour de la réhabilitation d’un ancien entrepôt en marché, de la construction d’un pavillon culturel et de la création d’un espace vert. Ces trois éléments, pensés comme un tout commun, sont liés par l’espace public venant se prolonger au cœur même du projet. Le programme qui mixte un marché, des équipements culturels et sportifs et un espace végétalisé, permet un lieu ouvert à tous favorisant le lien social et la cohésion au sein du quartier.
La matérialité s’appuie sur le contexte local avec une structure béton et un remplissage brique permettant de répondre au risque sismique mais également de se fondre dans l’identité du quartier, et de « faire » avec la ville. Les dispositifs architecturaux mis en place tels que les porosités, les reculs ou encore les façades actives permettent de prolonger la rue et de créer un véritable parcours au sein du plan guide et donc, du quartier, faisant du centre communautaire le point final de la promenade dans Atlampa.









