- DE 9 Transformations
- PFE
PERRIER-LATOUR Audrey
SINAN Yasmine
Réhabiliter pour reconnecter : réancrer les tours des les tours des Boute-en-Train dans le tissu urbain de Saint-Ouen
2025
Directeur(s) d'étude(s) : Alessandro MOSCA
Enseignants : Christine DÉSERT
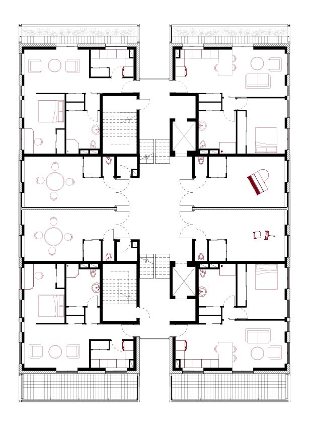
Situé aux portes de Paris, le site des Tours des Boute-en-Train à Saint-Ouen incarne à la fois l’héritage des grands ensembles des années 1960 et les défis actuels de la transformation urbaine. Conçues comme réponses modernistes à la crise du logement, les tours ont progressivement été isolées par un tissu urbain fragmenté et des infrastructures lourdes, accentuant leur dévalorisation. Ce projet de fin d’études, réalisé en binôme, propose une stratégie de réhabilitation fondée sur trois piliers : la reconnexion au territoire, la requalification des usages et la durabilité architecturale. L’ambition est de révéler le potentiel de ce patrimoine du quotidien en l’inscrivant dans une logique de tissage urbain, de mixité programmatique et d’ouverture. La requalification du site passe par la création de nouvelles continuités piétonnes reliant les marchés aux puces voisins, la transformation des friches en parcs urbains et l’introduction d’espaces conviviaux et paysagers. Enfin, la réhabilitation des tours leur redonne attractivité et valeur d’usage, en créant un pôle vivant, connecté et durable au cœur de Saint-Ouen.









