Directeur(s) d'étude(s) : Pierre-André COMTE, Thibaut DAVID
Enseignants : Pierre-André COMTE, Thibaut DAVID
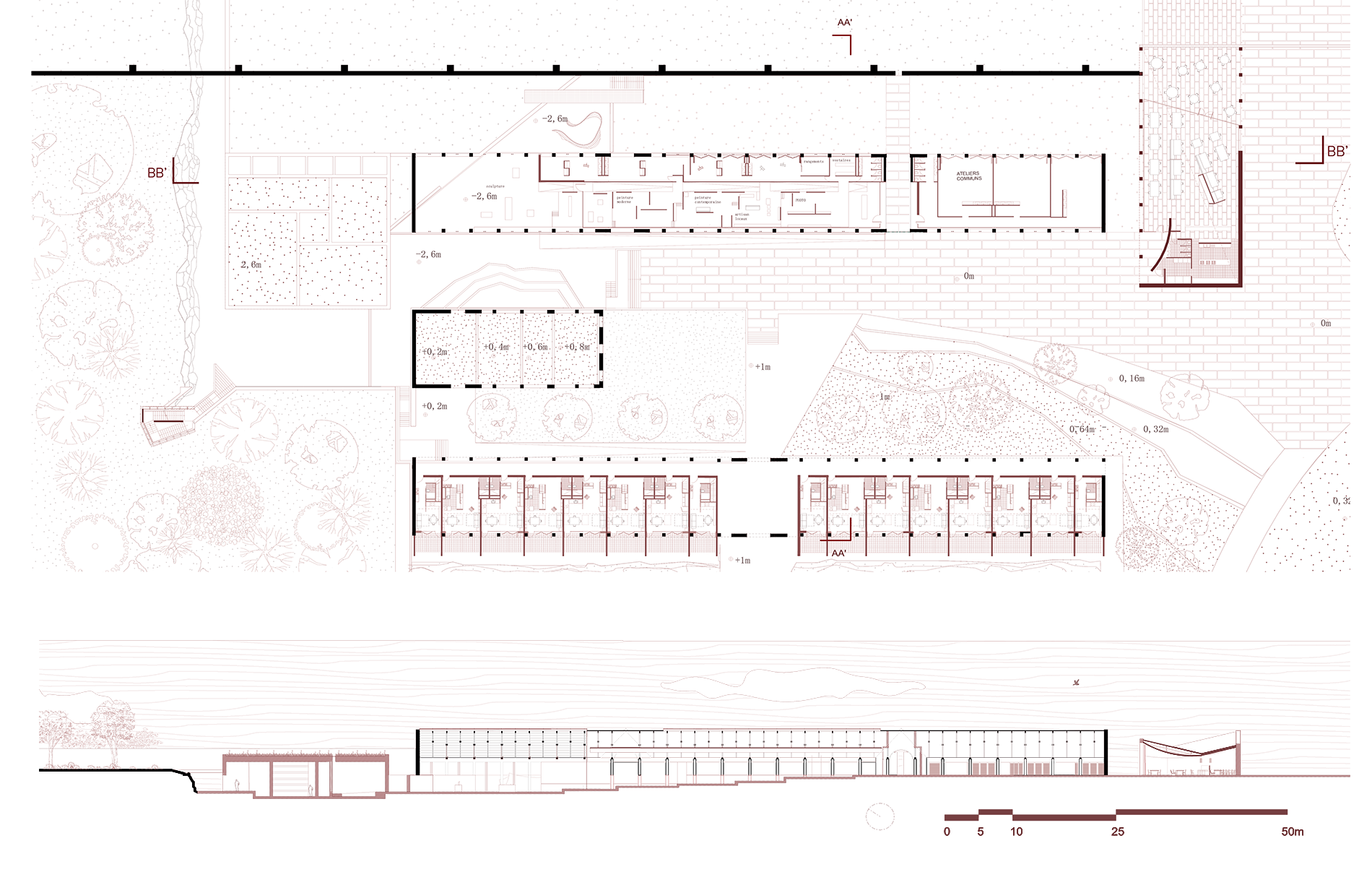
Située à Belle-Île-en-Mer, la colonie pénitentiaire du Palais évoque toute la dureté d’un passé que l’on a cherché à oublier. De 1880 à 1977, elle devint une maison de correction pour enfants, dont les conditions de vie insoutenables conduisirent à la mort de l’un d’entre eux. Aujourd’hui délaissé, le projet de réhabilitation du pénitencier pour enfants de Belle-Île-en-Mer s’inscrit dans une volonté de redonner vie à un site chargé d’histoire, adossé à une citadelle de Vauban, et d’apporter des réponses à un ensemble de problématiques propres à son territoire. L’objectif majeur de ce projet est de concilier mémoire et vie dans la réhabilitation d’un lieu marqué par l’enfermement.
Le projet propose un programme mixte réunissant logements, restaurant, musée, mémorial et belvédère.
Ce travail s’articule autour d’une réflexion constante sur l’horizontalité et le rapport au sol. En reprenant les principes de terrassement et de muralité du fort, l’objectif est de mettre en place un jeu de descentes au sein même de l’existant, afin de révéler symboliquement ses fondations. Le projet cherche en permanence à instaurer une dualité entre légèreté et massivité.









