- PFE
HAMIDOUCH Aya
De l'enclavement à l'ouverture : réinventer l'hôpital Jean Verdier de Bondy
2025
Directeur(s) d'étude(s) : Etienne LÉNA
Enseignants : Etienne LÉNA
L’hôpital Jean-Verdier, conçu en 1975 par Henri Colboc, Philippe et Bigot, s’inscrit dans le cadre du développement des hôpitaux de Paris mené par l’AP-HP. Situé à Bondy, il occupe une parcelle dense et se confronte à des problématiques sociales et urbaines fortes : précarité des habitants, isolement du site et manque d’espaces collectifs.
Face à ce contexte, le projet de réhabilitation a cherché à ouvrir l’hôpital sur son environnement, en transformant le site en un lieu de rencontre et de solidarité. La création d’une place centrale et la requalification programmatique des bâtiments ont constitué des leviers essentiels pour renforcer la cohésion urbaine.
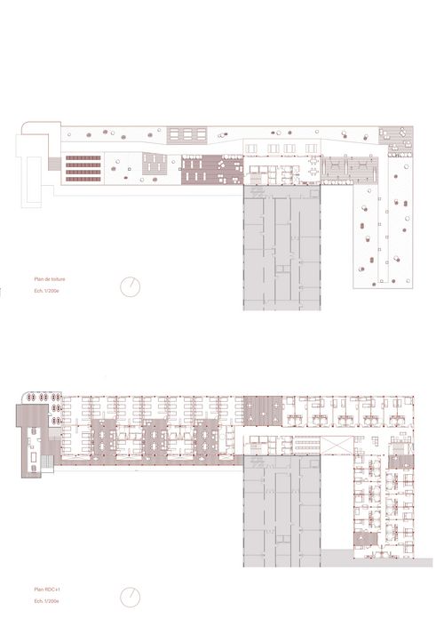
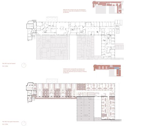
Dans ce cadre, mon travail s’est concentré sur la conception d’un centre d’aide et d’hébergement, impliquant une réflexion approfondie sur son insertion dans l’un des bâtiments existants de l’hôpital. L’enjeu était de garantir une cohérence avec le site et l’architecture en place, tout en donnant à ce centre une dimension structurante et fédératrice au cœur du projet.









