Directeur(s) d'étude(s) : Adrien DURRMEYER
Enseignants : Adrien DURRMEYER
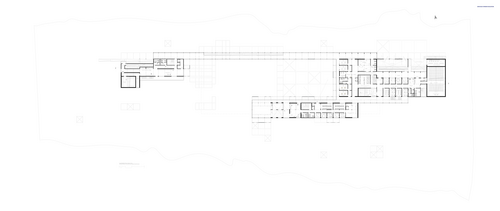
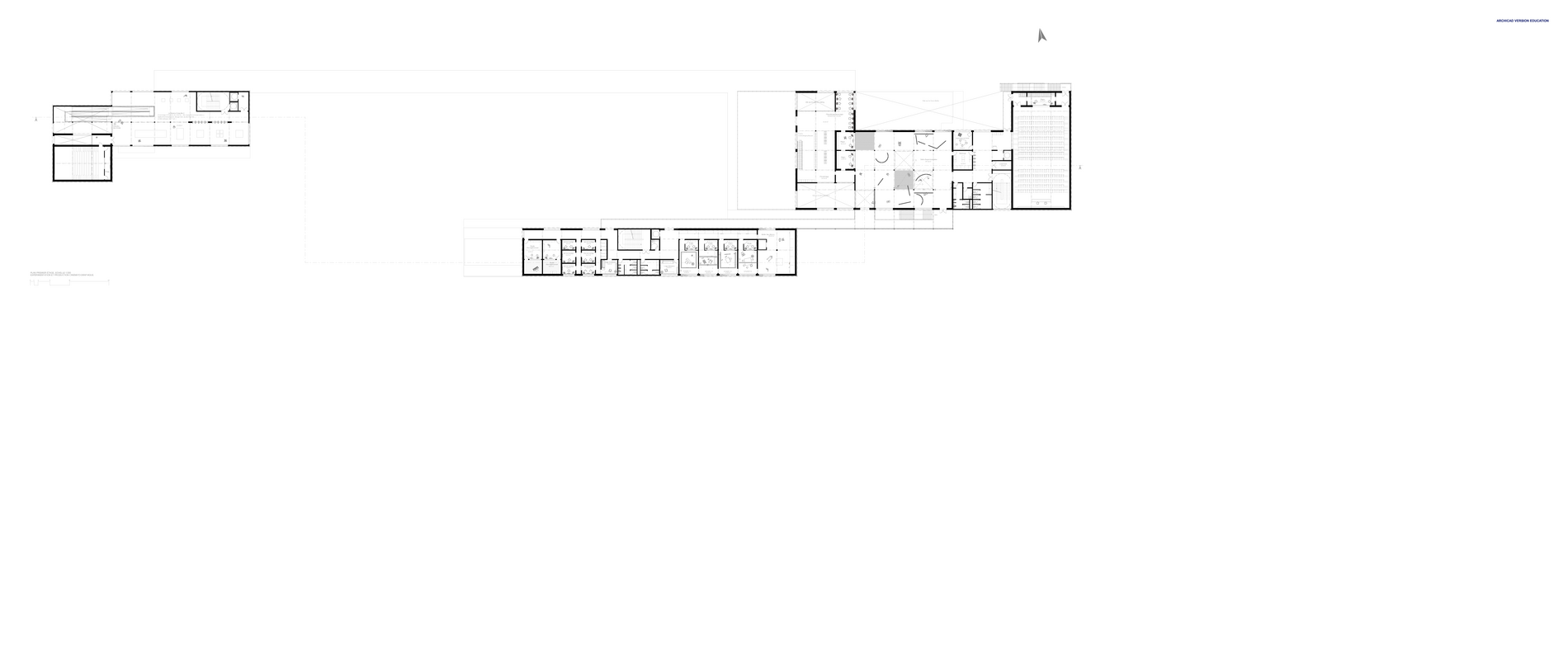
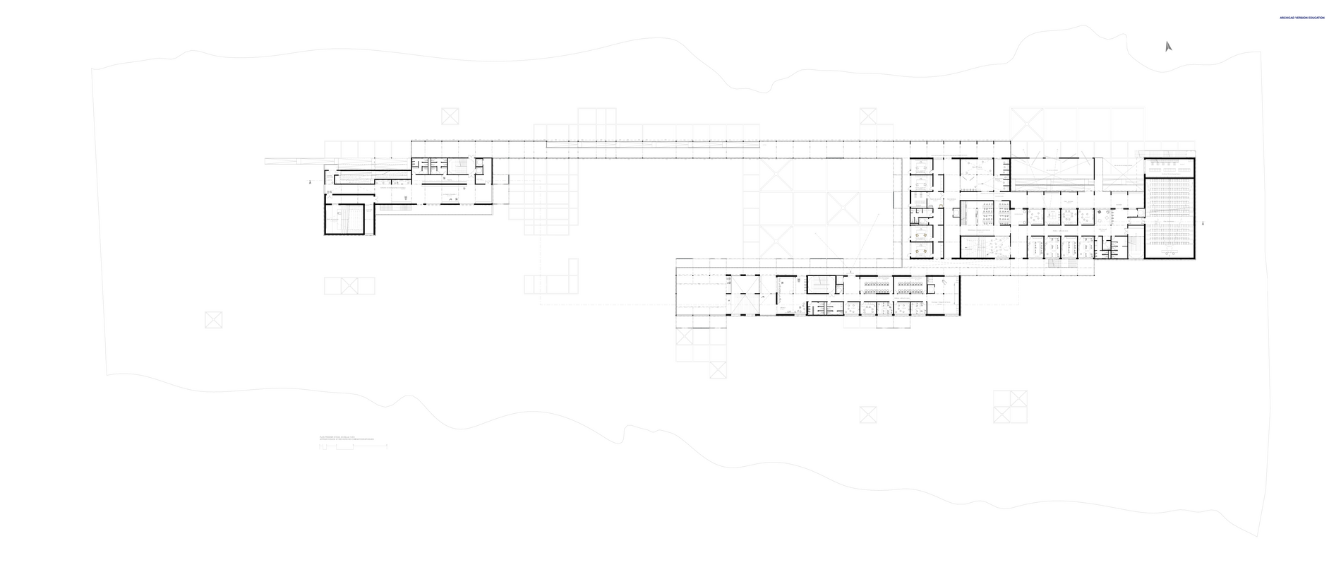
Souvent, le vocabulaire du cinéma se prête à l’architecture. En effet, l’architecture et l'art cinématographique, entretiennent des liens profonds et multidimensionnels qui transcendent les simples aspects visuels pour toucher à la narration spatiale, à la composition esthétique et à l'expérience émotionnelle.
Ces deux disciplines partagent ainsi une similarité dans leur capacité à raconter des histoires à travers l'espace. Tout comme un film utilise le langage visuel pour captiver et transporter le spectateur dans un monde fictif, l'architecture crée des environnements physiques qui évoquent des émotions, des idées et des récits culturels.
Cette interdisciplinarité entre l'architecture et le cinéma, se manifeste, ainsi, à travers une convergence de techniques narratives, esthétiques et fonctionnelles visant à enrichir l'expérience sensorielle et émotionnelle des usagers.
Tout d'abord, tant le cinéma que l'architecture sont des formes de narration spatiale, utilisant l'espace pour raconter des histoires et évoquer des émotions. Cette narration spatiale est soutenue ainsi par une composition visuelle soigneusement orchestrée, où le cinéma utilise des techniques telles que l'éclairage, l'angle de la caméra (l’angle de prise de vue) et le montage pour guider l'attention du spectateur, tout comme l'architecture utilise les cadrages de vues, les percées visuelles, la lumière naturelle,…, pour raconter un récit spatial, un vécu.
Je constate alors que le lien entre le cinéma et l'architecture crée une convergence multidisciplinaire qui améliore notre manière de percevoir et de concevoir notre cadre bâti.









