Directeur(s) d'étude(s) : Edouard GARDEBOIS, Jérémie NOIZETTE
Enseignants : Frank CHOPIN, Jean-François COIGNOUX
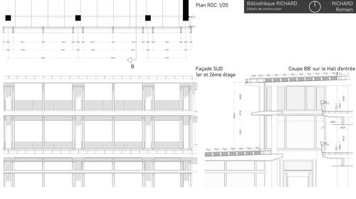
La bibliothèque Richard a réemployé une partie de la charpente d’un hangar de 38000 m2 réalisé à Yaoundé au Cameroun vers 1949 par Robert Le Ricolais. Nous disposons des poteaux et des nappes tridimensionnelles de module 3.20 par 3.20m réalisés selon le système APLEX.
Pour qu’une lumière réfléchie sur une immense paroi revêtue de bois se diffuse généreusement dans les espaces de lecture toute l’année aux heures d’ouverture de la bibliothèque, il a fallu une implantation à l’angle nord-ouest du jardin de l’Abbé Pierre, une orientation plein sud et la mise en place d’un dispositif de captation des rayons solaires à hauteur des étages supérieurs des bureaux de l’Avenue de France.
La silhouette caractéristique du capteur de lumière génère un signal fort au niveau du quartier. Du côté sud, la présence de l'immense paroi de bois suggère l’ambiance chaleureuse de l’édifice. Du côté nord, l’immense couverture en cuivre renouvelle notre perception du quartier et permet, les jours d’orages, de magnifiques jeux d’eau.
Les salles de lecture proposent une grande variété d’échelles d’espaces à lire, de perspectives plus ou moins ouvertes sur le paysage du jardin, de la ville ou de la bibliothèque qui permet à chacun de trouver le lieu qui convient le mieux à son humeur du moment.
Le raccourcissement de certaines barres de la structure tridimensionnelle a permis de réaliser la structure du grand réflecteur à lumière à partir duquel s’organise la bibliothèque.








